Project Credits: Laura Nica Studio
See Laura’s full profile on Design for Me and shortlist her for your home project here.
Location: Hounslow, SW London
Project type: House renovation with angled rear extension in St. Paul’s Conservation Area.
Property type: Large semi-detached period house.
Find your own architect: Click here to post your job
Client requirements – posted to Design for Me
“We have a fairly large semi detached house and want to open up the kitchen into one room and extend the kitchen too. We live in a conservation area. Ideally we would like the extension to make a bit of a statement rather than being a standard box. We would also like a shower room, pantry/utility room installed. Side access is 1.8m wide so potential to extend into some of this too. We are a bit stuck in terms of what to do as there appears to be so many different options, especially regarding internal layout.”
To bring this vision to life, they used Design for Me to find the right architect for their renovation and extension.
The couple were matched with Laura Nica, a London-based architect known for her sensitive, human-centred residential work.
Laura’s profile on Design for Me
Hi! My name is Laura and I am an award-winning London-based qualified architect and digital designer. I have over ten years of experience working in diverse architectural practices, mainly on high-end private residential developments, restorations, renovations (retrofits and new built schemes) in Conservation areas, Listed Buildings or AONBs.
I am in permanent pursue for delivering good quality solutions, pushing the boundaries and addressing individual briefs to create best outcomes for her clients. I am positive, very creative, extremely organised & diligent, adapting fast to each project requirements and addressing all ideas and desired results. My interests and experience cover a wide range of diverse and unique projects, focused on collaborations and playfulness. My speciality lies in material research, digital fabrication and craftsmanship.
Design priorities
The brief included:
- Opening up the ground floor to create a bright and welcoming kitchen-dining space
- Proposal for a Distinctively Angled Architectural Addition within a Designated Conservation Area
- Improving the visual and physical connection to the rear garden
- Retaining and enhancing key period features
- Maximising natural light throughout the property
- Incorporating ample built-in storage
The architectural solution
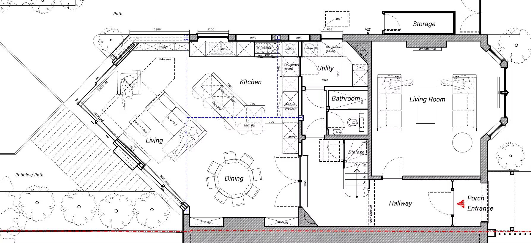
A proposed single-storey extension, conceived as a departure from the conventional box typology, seeks to deliver a generous, light-filled interior while remaining acutely responsive to the character of the existing property and its surrounding context.
The design employs a deliberate juxtaposition of two contrasting brick finishes, selected to enrich and complement the architectural language of the host building. A fully glazed corner element opens expansively to the garden, inviting the landscape to conceptually permeate the interior and dissolve the boundary between built and natural environments.

Architect’s design approach
Responding to the client’s brief for inventive spatial solutions within a tightly controlled budget, Laura developed a suite of design proposals that explored a spectrum of possibilities—from cost-effective minimalism to more expressive, sculptural forms.
Each concept drew inspiration from the architectural language of the property’s front façade, ensuring continuity and contextual sensitivity. This comprehensive service encompassed an initial site visit and measured survey, followed by iterative conceptual design sessions.
Given the atypical site configuration, a pre-planning enquiry was undertaken to assess feasibility, culminating in the submission of a full planning application.

![]() | ![]() |
Challenges and solutions
Through strategic angling of the proposed extension, a maximum depth of 4.5 metres was achieved—exceeding the standard guideline recommendation of 3 metres. However, the design has been carefully calibrated to safeguard neighbouring amenity, with oblique side elevations mitigating any sense of overbearing mass. The local authority has confirmed that the scheme would not result in adverse impacts on light or outlook to adjacent properties.
Architecturally, the extension adopts a contemporary language, articulated through a considered material palette comprising Yellow London Stock Brick and Kolumba Long Pale Brick. While intentionally distinct from the existing façade, these materials have been selected to introduce visual richness and ensure the addition reads as a complementary yet legible intervention. The proposed extension aimed to enhance natural illumination through increased glazing, while its rotated massing responded strategically to solar orientation and mitigated direct overlooking.
A roof-integrated skylight introduced supplementary daylight into the deeper zones of the ground floor, ensuring a well-lit interior throughout. Furthermore, to address limited storage, Laura introduced integrated cabinetry throughout—from under-stair niches to dining bench seating and kitchen units—creating a streamlined, clutter-free interior that fosters calm and comfort.
From the architect
“My aim was to create a home that felt grounded yet quietly transformative. I wanted to strike a balance—between old and new, light and shadow, practicality and poetry. Working within planning constraints, I explored inventive design strategies that responded not only to the site’s limitations but also to the clients’ aspirations. From the outset, I laid out the full regulatory pathway, liaised with all necessary parties, and offered a range of design options—from understated to expressive—tailored to their budget, spatial needs, and lifestyle. Every detail was considered in dialogue with the clients, ensuring the final proposal reflected how they live and what they value.” – Laura Nica
Find your perfect architect
Are you planning a similar renovation, extension or refurbishment? At Design for Me, we help homeowners connect with the perfect residential architect for their project – free of charge.
Click here to get started – post your job and we’ll match you with the best architects for your style, budget and location.
Project credits
- Architecture & Interior Design: Laura Nica Studio
- Photography: Laura Nica
This renovation project was found and completed through Design for Me. If you’re looking for the right architect for your home project, post your job here.
Emily Design for Me








